Groupe scolaire Victor Hugo

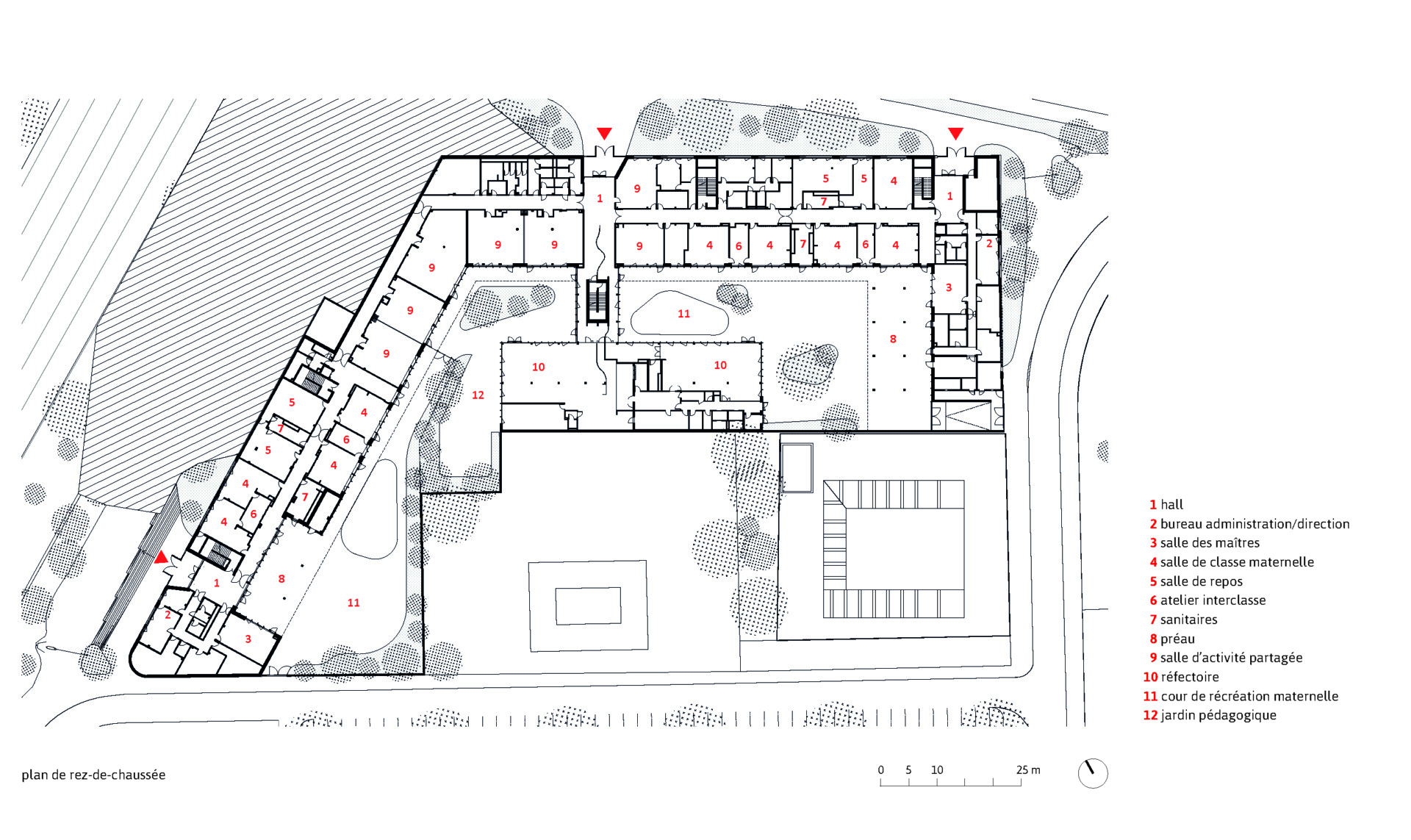
La réalisation du double groupe scolaire et centre de loisirs Victor Hugo s’inscrit dans le programme de renouvellement urbain du quartier prioritaire de la Dame Blanche, à Garges-lès-Gonesse. Situé à l’extrémité Nord du quartier, face au paysage naturel et agricole de la vallée du Petit Rosne, l’équipement vient s’implanter au pied des tours d’habitation sur une parcelle marquée par un important modelé de talus paysagers, en surplomb de la ligne ferroviaire. Il accueille deux groupes scolaires maternels et élémentaires de 13 classes chacun, ainsi qu’un centre de loisirs, un pôle restauration et des salles mutualisées aux deux établissements.

  • Programme construction d’un équipement accueillant deux groupes scolaires et un centre de loisirs, aménagement des parvis - quartier de la Dame Blanche Nord à Garges les Gonesse (95)
  • Maître d’ouvrage Ville de Garges Lès Gonesse, SEMAVO mandataire
  • Maître d’œuvre marjan hessamfar & joe vérons architectes associés mandataire, économiste et OPC, Terrell bet structure, Choulet bet fluides, thermique, HQE & SSI, idB acoustique acousticien, VIA infrastructure bet VRD, Cuisinorme cuisiniste, Taktyk paysagiste
  • Mission loi MOP + BPU-DPGF – économiste et OPC
  • Démarche niveau E3C1/ RE2020 – démarche HQE Bâtiment Durable très performant
  • Montant des travaux 20 400 000 € HT
  • Surface 5 625 m² sdp + parvis de 5 768 m²
  • Statut réceptionné en 2025
  • Photos Jean-François Tremege

L’architecture de l’équipement est née de la volonté d’établir des résonnances avec les espaces publics paysagers. Le bâtiment s’ancre dans la topographie du site, prolongeant le sol naturel et la végétation à l’intérieur de l’équipement. De même, l’aménagement des parvis généreusement végétalisés, tire parti du relief et des arbres existants pour intégrer le projet à l’environnement paysager.

Organisé en deux entités, disposant chacune de son propre parvis et d’entrées dédiées, l’équipement s’implante de manière à affirmer sa présence tout en préservant l’intimité des élèves derrière son enceinte protectrice. Le bâtiment se développe sur deux niveaux, avec un front bâti en rez-de-chaussée formant un socle qui s’intègre dans la topographie et deux volumes en R+1 situés aux extrémités, qui renforcent l’identification de chaque groupe scolaire. La volumétrie générale, le rythme des façades et le choix des matériaux – brique claire, bois et verre – composent une écriture architecturale lisible, sobre et durable.

Le projet architectural s’articule avec un projet paysager ambitieux et qualitatif. Au pied de l’équipement, une lisière végétale compose une mise à distance douce et naturelle, préservant l’intimité des élèves et des personnels. Cette continuité paysagère se prolonge jusqu’en toiture, où la végétation du R+1 côté Nord-Est se fond avec celle de l’espace public par un jeu de topographie. Inspiré des cours Oasis, l’aménagement des espaces extérieurs offre différentes ambiances et une multiplicité d’usages. La grande proportion de végétation et d’ombrage au sein des cours de récréation assure un véritable îlot de fraicheur lors de fortes chaleurs. Enfin, un jardin commun – comprenant un potager pédagogique, un verger et des gradins extérieurs – constitue un espace fédérateur, assurant le lien entre les deux cours maternelles en rez-de-chaussée.

Conforme à la RE2020, le bâtiment atteint le niveau Très Performant de la démarche HQE Bâtiment Durable et s’inscrit dans une approche globale alliant sobriété carbone, efficacité énergétique, évolutivité et qualité d’usage. Le projet privilégie des matériaux à faible empreinte environnementale, notamment bio et géo-sourcés : structure mixte bois-béton bas carbone, façades en brique de terre cuite et bois, plafonds et isolants en fibre de bois, revêtements de sol en linoléum, portes intérieurs et mobilier intégré en bois. Anticipant les évolutions futures, la composition du plan et des partitions, ainsi que les principes structurels et de façades, ont été pensés pour garantir la pérennité, la flexibilité et l’évolutivité du bâtiment.

L’orientation, la compacité des volumes et des apports maîtrisés en lumière naturelle contribuent pleinement à la performance énergétique du bâtiment qui intègre également la production d’énergie renouvelable au moyen de panneaux photovoltaïques en toiture.
L’aménagement intérieur prolonge ces principes en plaçant le bien-être et la santé des élèves au cœur du projet : lumière naturelle, qualité de l’air, traitement acoustique, vues vers l’extérieur, ambiances douces et chaleureuses, participent à la création d’un environnement serein et stimulant.

  • Programme construction d’un équipement accueillant deux groupes scolaires et un centre de loisirs, aménagement des parvis - quartier de la Dame Blanche Nord à Garges les Gonesse (95)
  • Maître d’ouvrage Ville de Garges Lès Gonesse, SEMAVO mandataire
  • Maître d’œuvre marjan hessamfar & joe vérons architectes associés mandataire, économiste et OPC, Terrell bet structure, Choulet bet fluides, thermique, HQE & SSI, idB acoustique acousticien, VIA infrastructure bet VRD, Cuisinorme cuisiniste, Taktyk paysagiste
  • Mission loi MOP + BPU-DPGF – économiste et OPC
  • Démarche niveau E3C1/ RE2020 – démarche HQE Bâtiment Durable très performant
  • Montant des travaux 20 400 000 € HT
  • Surface 5 625 m² sdp + parvis de 5 768 m²
  • Statut réceptionné en 2025
  • Photos Jean-François Tremege
Ecole maternelle et primaire

Voir aussi